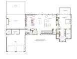
Description
Perched on a premium homesite with panoramic views of the Atlanta skyline, this TO-BE-BUILT Mountain Modern masterpiece offers a rare combination of modern architecture, high-end luxury, and breathtaking natural beauty: where modern elegance meets the serenity of mountain living. This very unique home easily compares to multimillion dollar homes being built in surrounding areas. With this property one could enjoy a high quality home while appreciating the benefits of living in a private and gated, residential mountain community with resort style amenities at the foothills of the North Georgia mountains, only an hour from Atlanta. This forward-thinking builder utilizes construction technologies and materials that maximize energy efficiency and wall strength, minimize energy costs and maintenance, and nearly eliminate sound and air transmission. Clean lines and expansive glass frame stunning vistas, and seamlessly integrate the surrounding environment with the interior. This modern home features 4 bedrooms, 3.5 bathrooms, and approximately 3,650 highly efficient square feet of open concept living. The main level includes a vaulted great room with floor-to-ceiling windows, a gourmet chef's kitchen with Wolf and Sub-Zero appliances, and a spacious primary suite with spa-inspired bath and private balcony. Additional highlights include a large, covered porch with massive stone fireplace, plus and integrated expansive deck perfect for entertaining or soaking in the sunset's over Atlanta. An "Architectural Digest" worthy white oak, cantilevered floating stair system, surrounded by white Texas limestone walls, transitions the main level to the terrace. The terrace level includes 3 additional bedrooms, a great room with an oversized modern wet bar, and another fireplace. The terrace level also includes an extra finished room that could be used as a home office, gym, or storage of your off-season wardrobe. Make this mountain modern retreat yours and experience luxury, low maintenance, views, and tranquility all just a short drive from the city. Welcome to your future dream home in the exclusive, gated community of Big Canoe. Photos in the FMLS listing are examples of the to-be-built home and are not intended to be a complete duplicate of the new construction.
-
4BEDS
-
0.88ACRES
-
3BATHS
-
11/2 BATHS
-
3,650SQFT
-
$507$/SQFT
School Information
Description
Perched on a premium homesite with panoramic views of the Atlanta skyline, this TO-BE-BUILT Mountain Modern masterpiece offers a rare combination of modern architecture, high-end luxury, and breathtaking natural beauty: where modern elegance meets the serenity of mountain living. This very unique home easily compares to multimillion dollar homes being built in surrounding areas. With this property one could enjoy a high quality home while appreciating the benefits of living in a private and gated, residential mountain community with resort style amenities at the foothills of the North Georgia mountains, only an hour from Atlanta. This forward-thinking builder utilizes construction technologies and materials that maximize energy efficiency and wall strength, minimize energy costs and maintenance, and nearly eliminate sound and air transmission. Clean lines and expansive glass frame stunning vistas, and seamlessly integrate the surrounding environment with the interior. This modern home features 4 bedrooms, 3.5 bathrooms, and approximately 3,650 highly efficient square feet of open concept living. The main level includes a vaulted great room with floor-to-ceiling windows, a gourmet chef's kitchen with Wolf and Sub-Zero appliances, and a spacious primary suite with spa-inspired bath and private balcony. Additional highlights include a large, covered porch with massive stone fireplace, plus and integrated expansive deck perfect for entertaining or soaking in the sunset's over Atlanta. An "Architectural Digest" worthy white oak, cantilevered floating stair system, surrounded by white Texas limestone walls, transitions the main level to the terrace. The terrace level includes 3 additional bedrooms, a great room with an oversized modern wet bar, and another fireplace. The terrace level also includes an extra finished room that could be used as a home office, gym, or storage of your off-season wardrobe. Make this mountain modern retreat yours and experience luxury, low maintenance, views, and tranquility all just a short drive from the city. Welcome to your future dream home in the exclusive, gated community of Big Canoe. Photos in the FMLS listing are examples of the to-be-built home and are not intended to be a complete duplicate of the new construction.
Listings identified with the FMLS IDX logo come from FMLS, are held by brokerage firms other than the owner of this website and the listing brokerage is identified in any listing details. Information is deemed reliable but is not guaranteed.
If you believe any FMLS listing contains material that infringes your copyrighted work, please click here to review our DMCA policy and learn how to submit a takedown request.
© 2025 First Multiple Listing Service, Inc. Data last updated 2025-11-16T00:03:31.02. For issues regarding this website, please contact BoomTown.
