Description
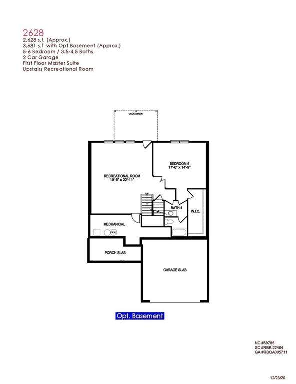
Welcome to Homesite 12, where comfort, space, and style come together on a private 3.63-acre cul-de-sac lot. Under construction with an estimated completion of late October to November, this 3,681 sq. ft. home offers 6 bedrooms and 4.5 baths on a full finished basement designed to meet all your needs. The inviting open-concept layout features a spacious family room with an electric fireplace, a kitchen with quartz countertops, and a separate dining room perfect for gatherings. Luxury vinyl plank flooring flows throughout the main living areas with carpet in the bedrooms for added comfort. The main level owner's suite provides privacy and convenience, while upstairs you'll find additional bedrooms and a recreational space. The fully finished basement includes a bedroom and full bath, creating an ideal space for guests, in-laws, or multi-generational living.
-
6BEDS
-
3.63ACRES
-
4BATHS
-
11/2 BATHS
-
3,681SQFT
-
$174$/SQFT
School Information
Description
Welcome to Homesite 12, where comfort, space, and style come together on a private 3.63-acre cul-de-sac lot. Under construction with an estimated completion of late October to November, this 3,681 sq. ft. home offers 6 bedrooms and 4.5 baths on a full finished basement designed to meet all your needs. The inviting open-concept layout features a spacious family room with an electric fireplace, a kitchen with quartz countertops, and a separate dining room perfect for gatherings. Luxury vinyl plank flooring flows throughout the main living areas with carpet in the bedrooms for added comfort. The main level owner's suite provides privacy and convenience, while upstairs you'll find additional bedrooms and a recreational space. The fully finished basement includes a bedroom and full bath, creating an ideal space for guests, in-laws, or multi-generational living.
Related Properties
Listings identified with the FMLS IDX logo come from FMLS, are held by brokerage firms other than the owner of this website and the listing brokerage is identified in any listing details. Information is deemed reliable but is not guaranteed.
If you believe any FMLS listing contains material that infringes your copyrighted work, please click here to review our DMCA policy and learn how to submit a takedown request.
© 2025 First Multiple Listing Service, Inc. Data last updated 2025-11-08T13:04:29.487. For issues regarding this website, please contact BoomTown.
